Fenster
Balkontüren
Terrassentüren
Haustüren
Sonnenschutz
Zäune & Tore
Garagentore
Carports
Anmelden / Registrieren
Kontakt / Hilfe
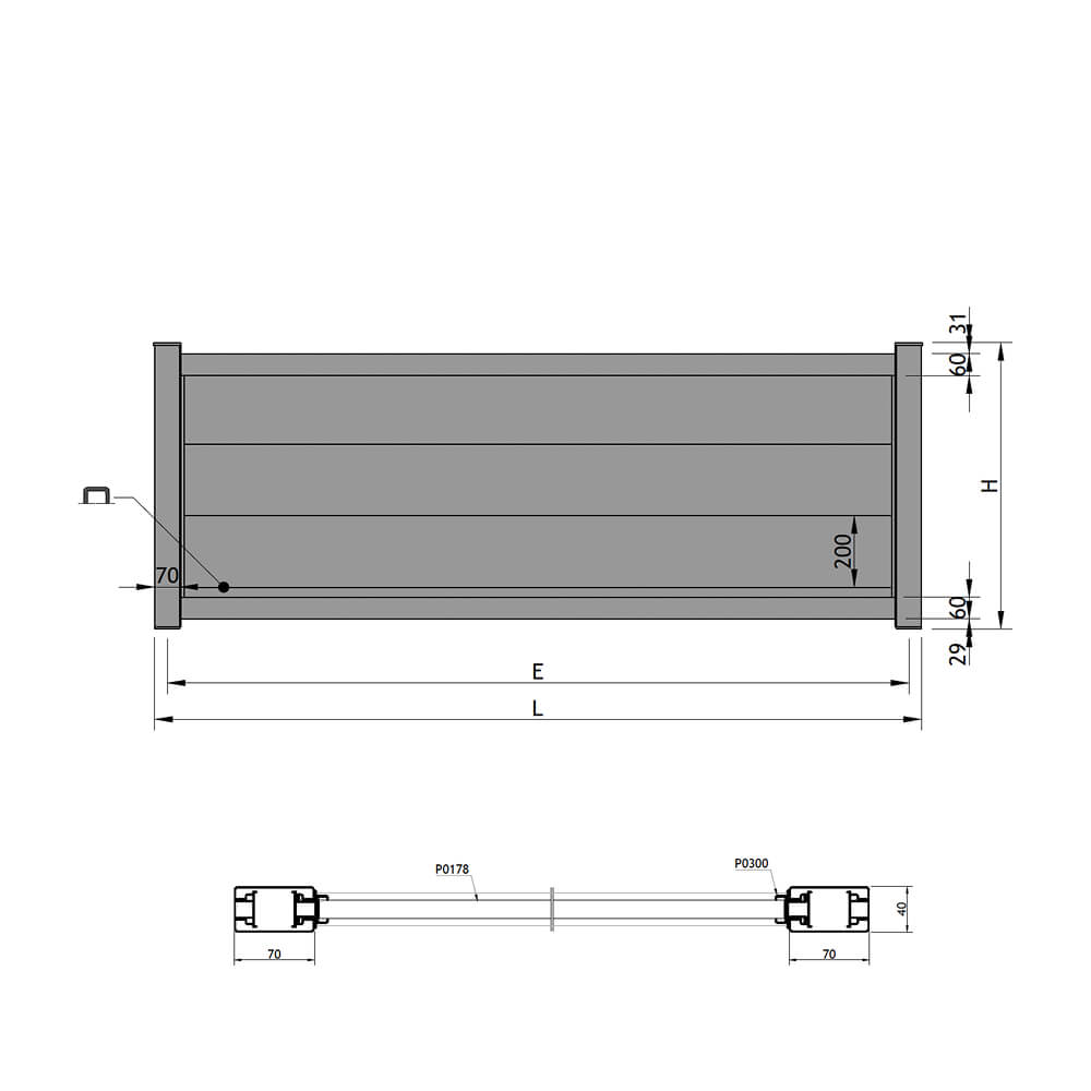
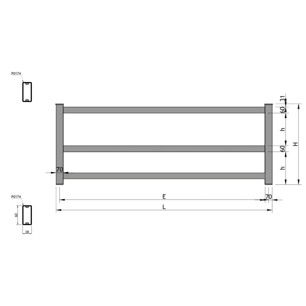
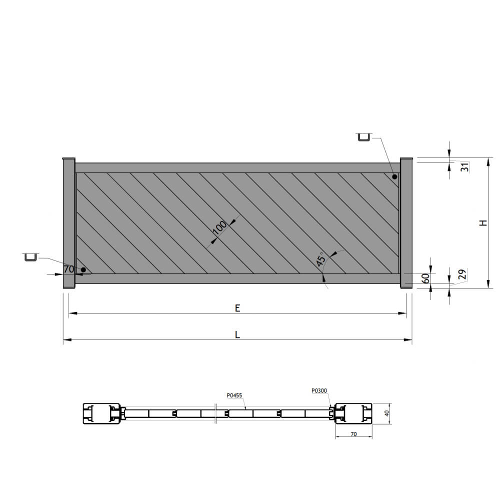
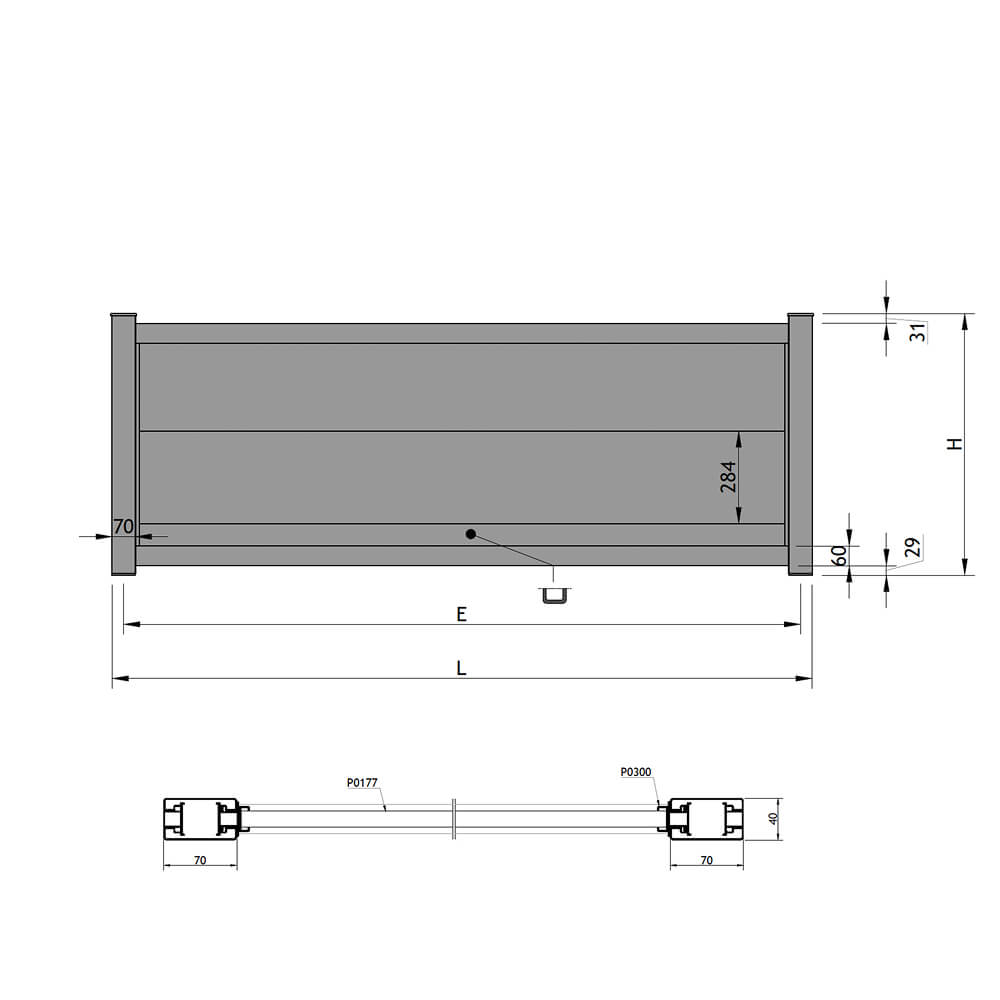
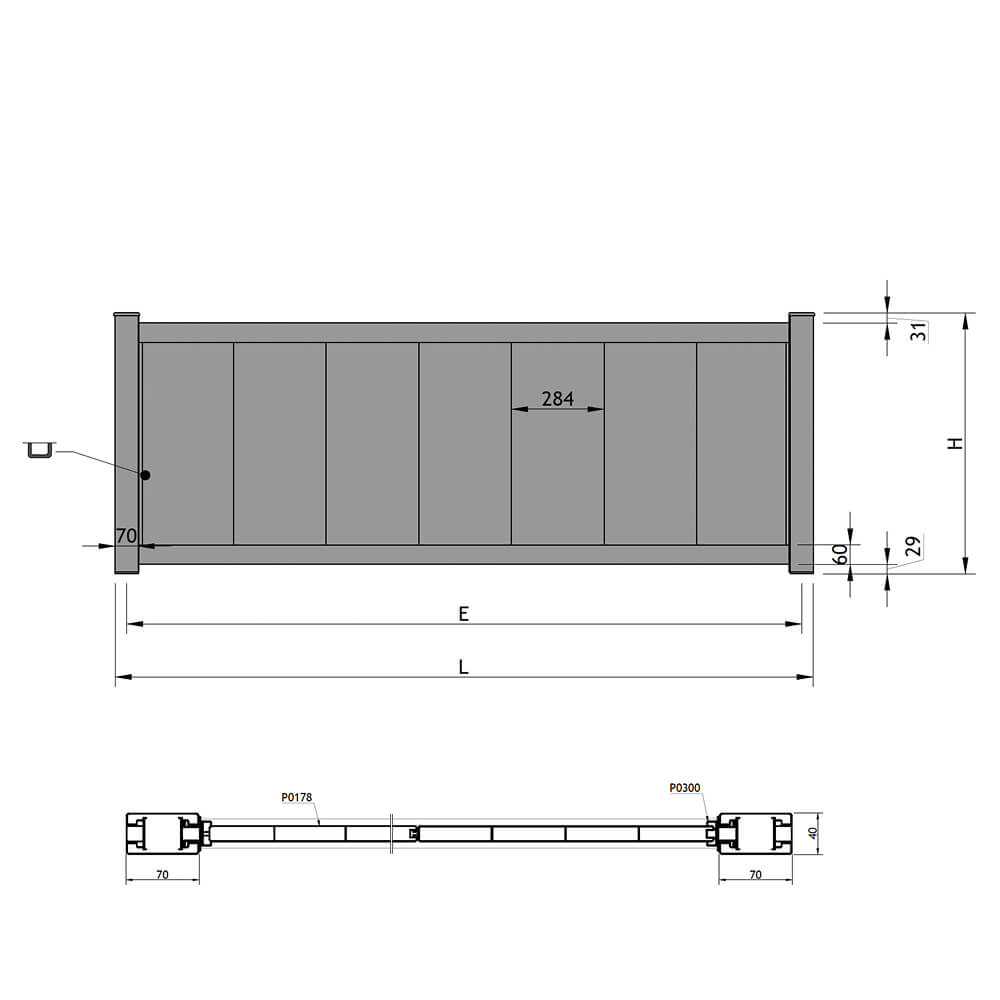
Auf dieser Seite stellen wir Ihnen genaue Detailzeichnungen für Ihren Zaun bereit. Für eine passgenaue Montage sollten Sie sich im Voraus über die Regeldetails, Profil-Schnitte und CAD-Pläne informieren. Sie benötigen die technischen Daten und Maße sowohl im Online-Bestellprozess als auch bei der Vorbereitung für die Zaunmontage. Die Profil-Schnitte zeigen Ihnen den exakten Aufbau Ihres neuen Zauns.





















Bitte beachten Sie, dass es sich hierbei um Standardzeichnungen handelt. Wenn Sie vor dem Bestellvorgang genau wissen möchten, welche Profile, Modelle und Bauteile verbaut werden, kontaktieren Sie bitte unseren Kundenservice unter 0800 66 55 75 oder per E-Mail an info@fensterversand.at. Unsere Experten helfen Ihnen gerne bei der Konfiguration und beantworten Ihre Fragen zu unseren Produkten.