Fenster 
 Balkontüren 
 Terrassentüren 
 Haustüren 
 Sonnenschutz 
 Zäune & Tore 
 Garagentore 
 Carports 
 Anmelden / Registrieren 
 Kontakt / Hilfe 

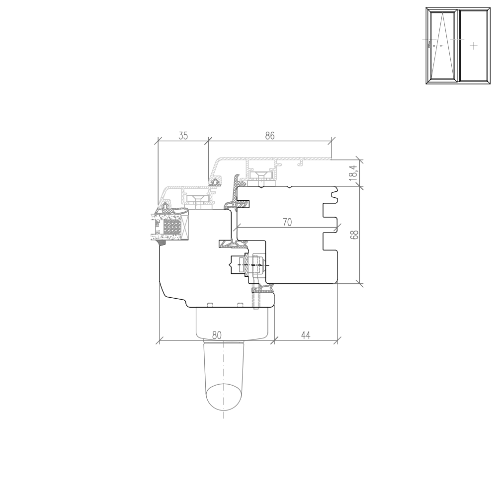
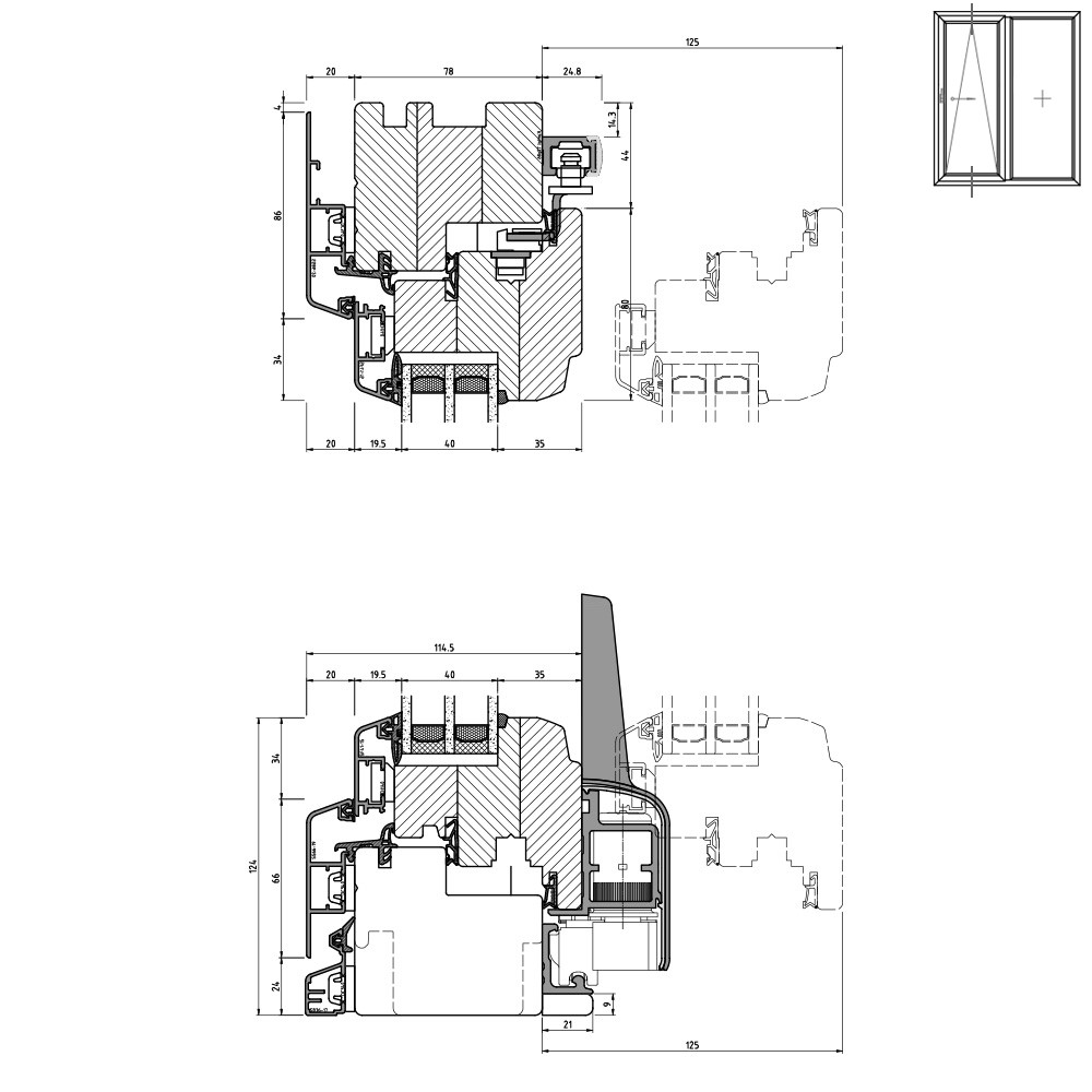
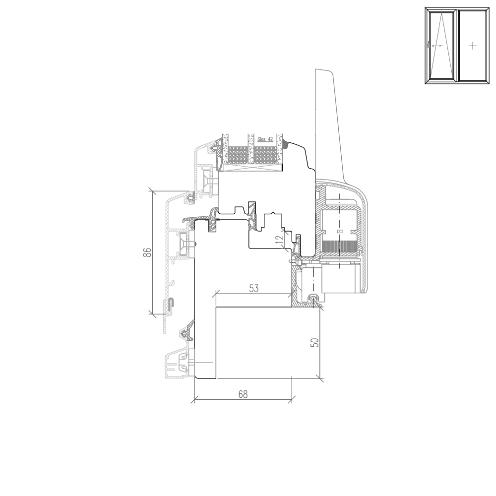
An dieser Stelle zeigen wir Ihnen alle Regeldetails, Profil-Schnitte und CAD-Pläne der bei uns erhältlichen PSK-Türen aus Holz-Alu. Anhand dieser Detailzeichnungen können Sie genauestens alle Maße und Details unserer PSK-Türen einsehen. Hier finden Sie alle Profile Ihres Türrahmens, um die Montage bereits bestens vorbereiten zu können. Dadurch wird die Konfiguration ein Kinderspiel. Für den Einbau der PSK-Tür empfehlen wir die Terrassentür entsprechend der RAL-Richtlinien zu montieren.



























Bitte beachten Sie, dass es sich hierbei um Standardzeichnungen handelt. Wenn Sie vor dem Bestellvorgang genau wissen möchten, welche Profile, Modelle und Bauteile verbaut werden, kontaktieren Sie bitte unseren Kundenservice unter 0800 66 55 75 oder per E-Mail an info@fensterversand.at. Unsere Experten helfen Ihnen gerne bei der Konfiguration und beantworten Ihre Fragen zu unseren Produkten.