Fenster
Balkontüren
Terrassentüren
Haustüren
Sonnenschutz
Zäune & Tore
Garagentore
Carports
Anmelden / Registrieren
Kontakt / Hilfe

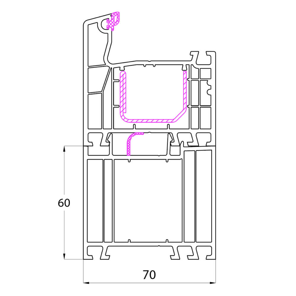
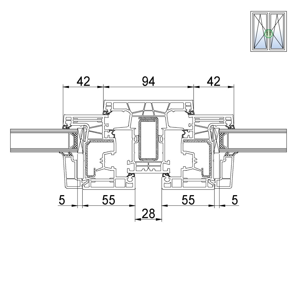
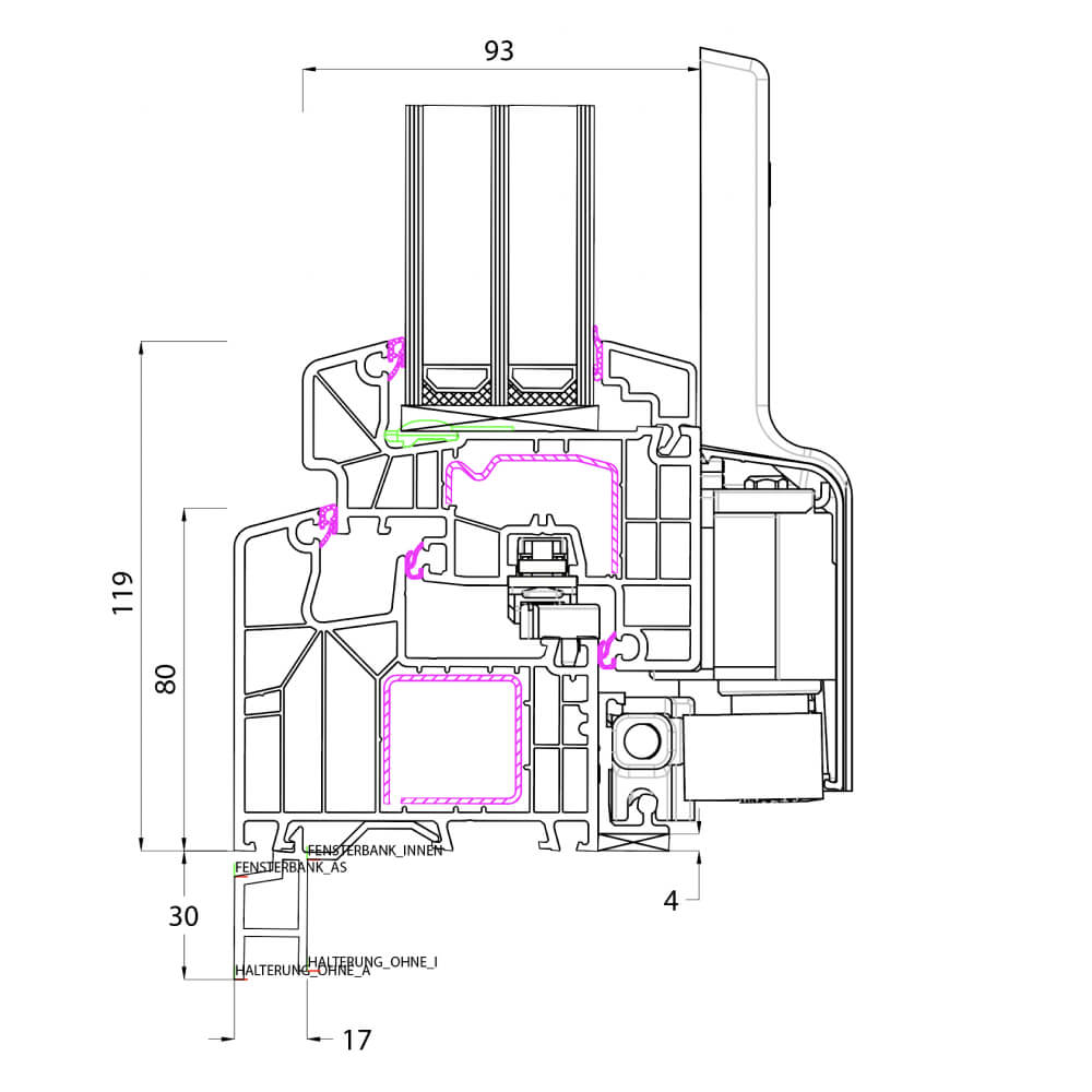
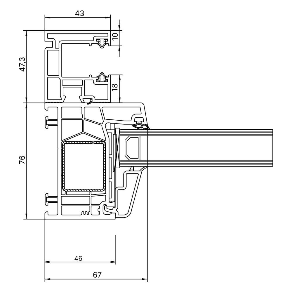
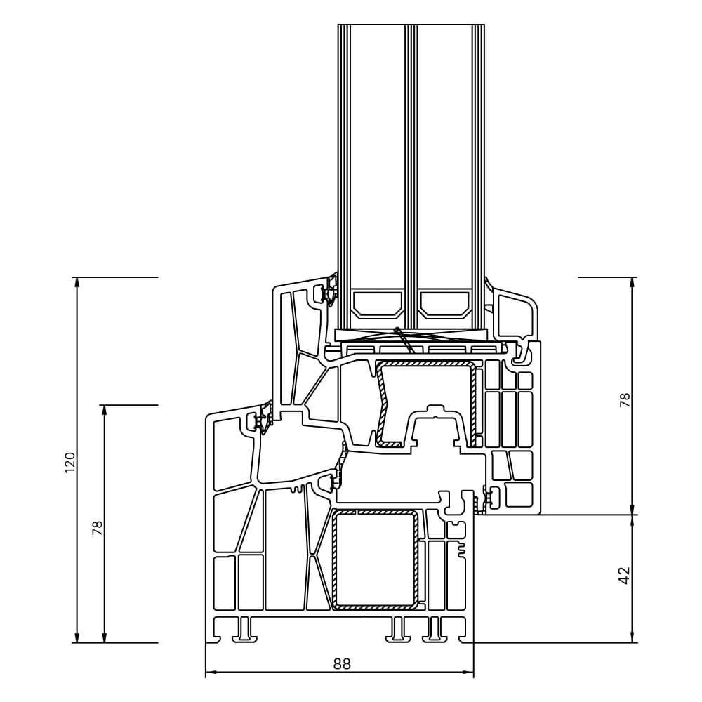
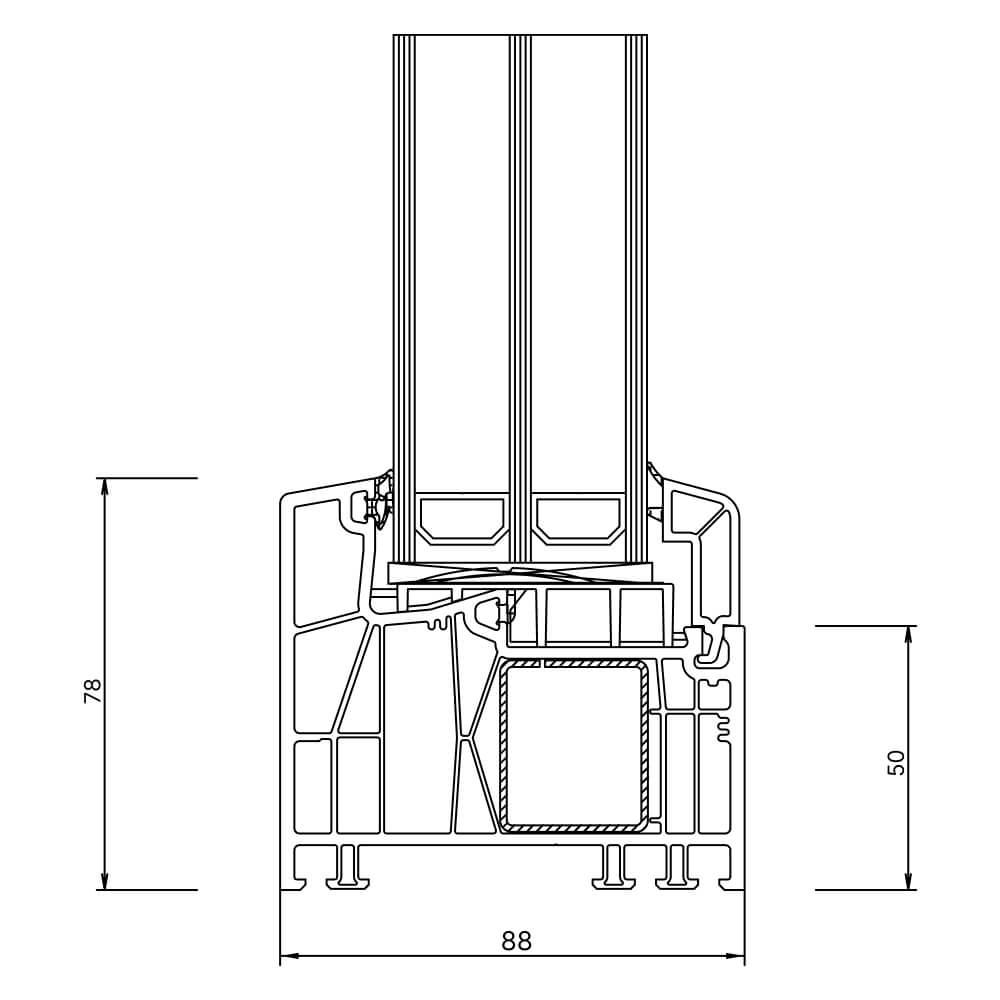
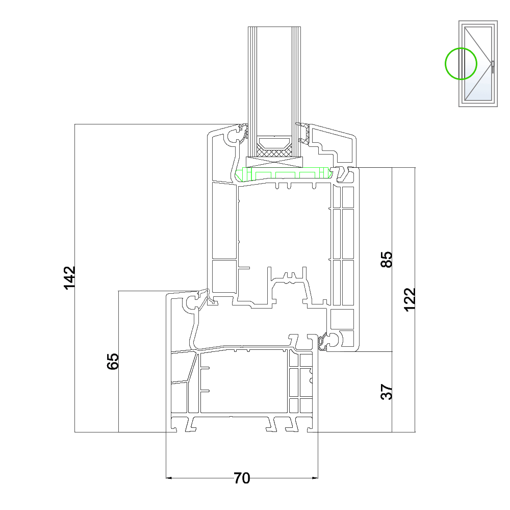
An dieser Stelle zeigen wir Ihnen alle Regeldetails, Profil-Schnitte und CAD-Pläne der bei uns erhältlichen Fenster aus Kunststoff. Anhand dieser Detailzeichnungen können Sie genauestens alle Maße und Details unserer Kunststofffenster einsehen. Hier finden Sie alle Profile Ihres Fensterrahmens, um die Fenster-Montage bereits bestens vorbereiten zu können. Dadurch wird die Fenster-Konfiguration ein Kinderspiel. Für den Einbau der Fenster empfehlen wir den RAL-Richtlinien entsprechend die Fenster zu montieren.




























































































































































































































































Die prozessgesteuerte Fertigung unserer Fensterprofile aus Kunststoff sowie Kunststoff-Fensterelementen erlaubt es uns, Ihnen die genauen Detailzeichnungen unserer Fenster zur Ansicht bereitzustellen.
Der Onlineshop fensterversand.at ermöglicht hier die Einsicht in CAD-Zeichnungen und Schnitte seiner Fensterprofile! Mit Hilfe der Fenster-Detailzeichnungen können Sie sich genauestens über den Aufbau der Fenster von fensterversand.at informieren.
Bitte beachten Sie, dass es sich hierbei um Standardzeichnungen handelt. Wenn Sie vor dem Bestellvorgang genau wissen möchten, welche Profile, Modelle und Bauteile verbaut werden, kontaktieren Sie bitte unseren Kundenservice unter 0800 66 55 75 oder per E-Mail an info@fensterversand.at. Unsere Experten helfen Ihnen gerne bei der Konfiguration und beantworten Ihre Fragen zu unseren Produkten.