Fenster
Balkontüren
Terrassentüren
Haustüren
Sonnenschutz
Zäune & Tore
Garagentore
Carports
Anmelden / Registrieren
Kontakt / Hilfe

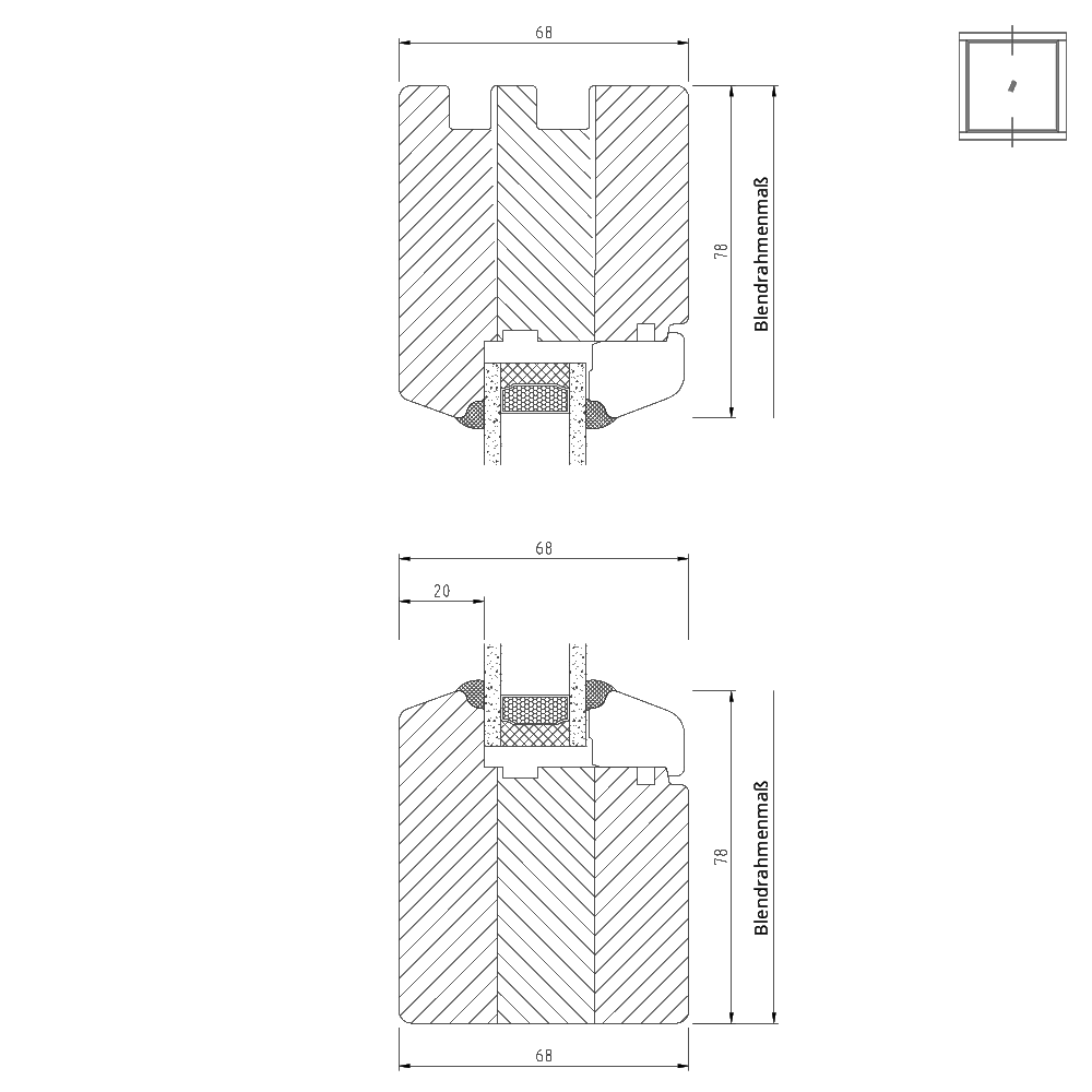
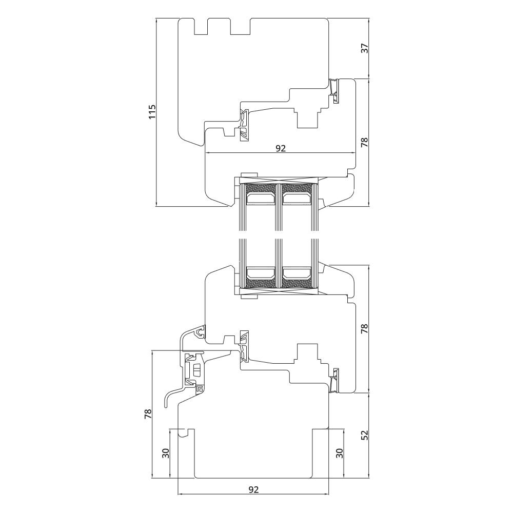
An dieser Stelle zeigen wir Ihnen alle Regeldetails, Profil-Schnitte und CAD-Pläne der bei uns erhältlichen Fenster aus Holz. Anhand dieser Detailzeichnungen können Sie genauestens alle Maße und Details unserer Holzfenster einsehen. Hier finden Sie alle Profile Ihres Fensterrahmens, um die Fenster-Montage bereits bestens vorbereiten zu können. Dadurch wird die Fenster-Konfiguration ein Kinderspiel. Für den Einbau der Fenster empfehlen wir die Fenster entsprechend der RAL-Richtlinien zu montieren.











































Bitte beachten Sie, dass es sich hierbei um Standardzeichnungen handelt. Wenn Sie vor dem Bestellvorgang genau wissen möchten, welche Profile, Modelle und Bauteile verbaut werden, kontaktieren Sie bitte unseren Kundenservice unter 0800 66 55 75 oder per E-Mail an info@fensterversand.at. Unsere Experten helfen Ihnen gerne bei der Konfiguration und beantworten Ihre Fragen zu unseren Produkten.