Fenster
Fenster
Fenster
Balkontüren
Balkontüren
Balkontüren
Terrassentüren
Terrassentüren
Terrassentüren
Haustüren
Haustüren
Haustüren
Sonnenschutz
Sonnenschutz
Sonnenschutz
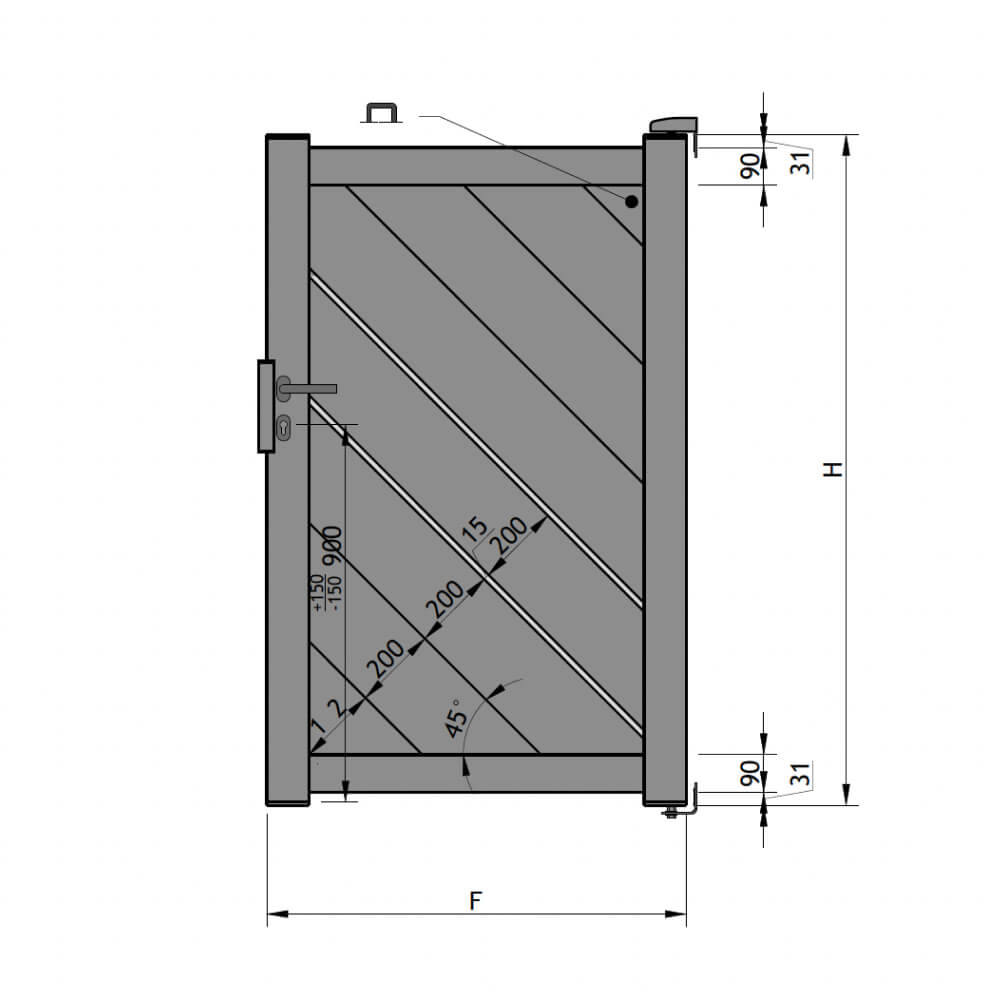
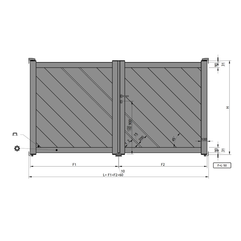
Zäune & Tore
Zäune & Tore
Zäune & Tore
Garagentore
Garagentore
Garagentore
Carports
Carports
Carports
Anmelden / Registrieren
Kontakt / Hilfe


































































































